2階 2Aは現在募集がありません

岡安ビル 2階 2A

前の写真 次の写真

物件概要

物件番号

560-00030-20

物件名

岡安ビル

所在地

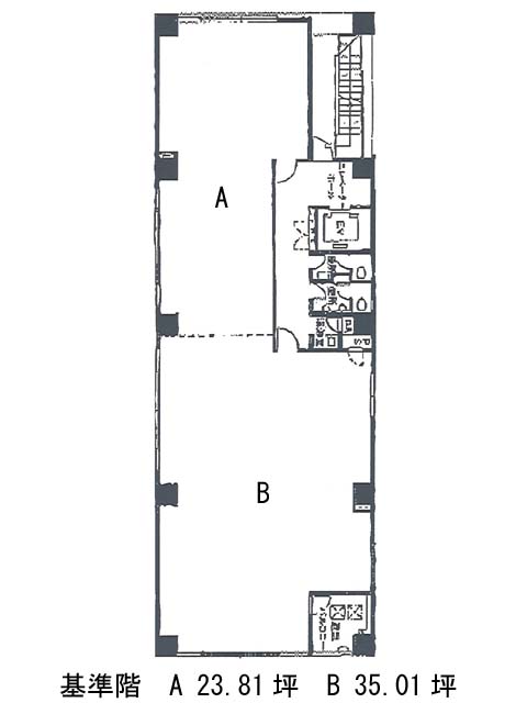
面積

23.86坪

賃料(共益費含)


入居日

募集終了

保証金

礼金

更新料

償却費

竣工

1987年5月

構造

SRC

規模

地上9階

トイレ

男女別

空調

個別空調

エレベーター

セキュリティ

駐車場

耐震

新耐震基準

基準階天井高

2550mm

空室延床面積

最寄駅

情報更新日

2025/08/18

岡安ビルのテナント募集中区画

現在、空室がございません。

アクセス

岡安ビルの物件情報

岡安ビル(台東区蔵前)は蔵前駅(A4番出口)から徒歩2分の賃貸オフィスです。
岡安ビルは蔵前駅(A4番出口)の他に浅草駅(A1番出口)徒歩8分、田原町駅(2番出口)徒歩10分で利用も可能です。

近隣のエリア・駅から探す