4階 4Bは現在募集がありません
岡安ビル 4階 4B
物件概要
岡安ビルのテナント募集中区画
現在、空室がございません。
アクセス
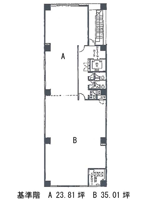
岡安ビルの物件情報
岡安ビル(台東区蔵前)は蔵前駅(A4番出口)から徒歩2分の賃貸オフィスです。岡安ビルは蔵前駅(A4番出口)の他に浅草駅(A1番出口)徒歩8分、田原町駅(2番出口)徒歩10分で利用も可能です。

