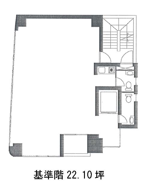
2階は現在募集がありません
ISIビル 2階
物件概要
ISIビルのテナント募集中区画
現在、空室がございません。
アクセス
ISIビルの物件情報
ISIビル(台東区台東)は新御徒町駅(A3番出口)から徒歩3分の賃貸オフィスです。ISIビルは新御徒町駅(A3番出口)の他に仲御徒町駅(1番出口)徒歩8分、稲荷町駅(2番出口)徒歩8分で利用も可能です。

