6階は現在募集がありません
シュプールおかむらビル 6階
物件概要
シュプールおかむらビルのテナント募集中区画
現在、空室がございません。
アクセス
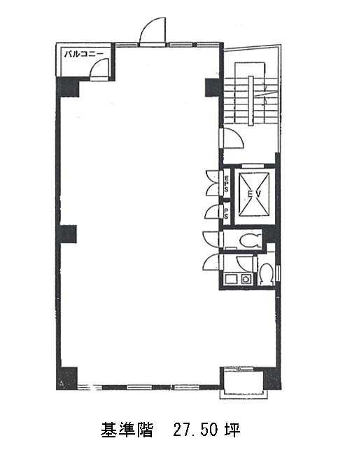
シュプールおかむらビルの物件情報
シュプールおかむらビル(台東区台東)は新御徒町駅(A1番出口)から徒歩3分の賃貸オフィスです。シュプールおかむらビルは新御徒町駅(A1番出口)の他に仲御徒町駅(3番出口)徒歩4分、上野御徒町駅(A8番出口)徒歩6分で利用も可能です。

