5階は現在募集がありません
サワビル 5階
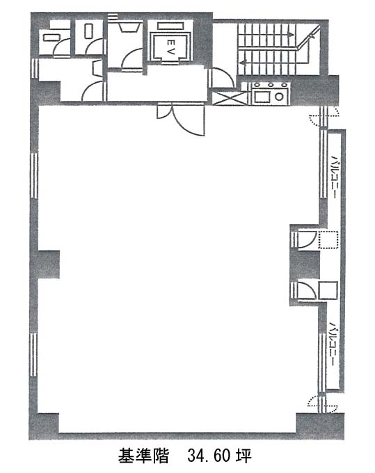
物件概要
サワビルのテナント募集中区画
現在、空室がございません。
アクセス
サワビルの物件情報
サワビル(台東区台東)は秋葉原駅(2番出口)から徒歩5分の賃貸オフィスです。サワビルは秋葉原駅(2番出口)の他に仲御徒町駅(1番出口)徒歩6分、末広町駅(1番出口)徒歩7分で利用も可能です。

