2階は現在募集がありません

妙高酒造ビル 2階

前の写真 次の写真

物件概要

物件番号

565-00414-10

物件名

妙高酒造ビル

所在地

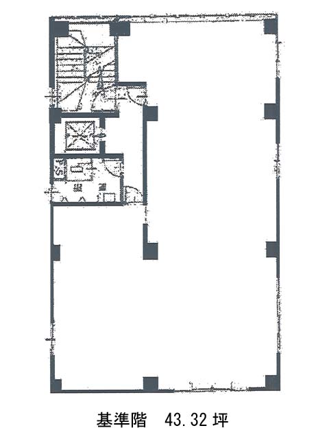
面積

43.32坪

賃料(共益費含)


入居日

募集終了

保証金

礼金

更新料

償却費

竣工

1973年1月

構造

RC

規模

地上6階

トイレ

男女別

空調

個別空調

エレベーター

セキュリティ

駐車場

耐震

旧耐震基準

基準階天井高

空室延床面積

最寄駅

情報更新日

2024/12/05

妙高酒造ビルのテナント募集中区画

現在、空室がございません。

アクセス

妙高酒造ビルの物件情報

妙高酒造ビル(台東区東上野)は新御徒町駅(A1番出口)から徒歩3分の賃貸オフィスです。
1973年竣工、地上6階建ての鉄筋コンクリート造です。竣工年から年数が経っておりますが、2008年に内装・外装ともにリニューアル済みのため、清潔感を感じます。エントランスも管理が行き届いており、石造りで重厚感のある造りとなっています。室内はL時型に近く、広さは約40坪です。柱が壁側にありますので、広々とした印象です。トイレは1か所、個別空調、床はタイルカーペットです。エレベーターは1基ございます。
妙高酒造ビルは新御徒町駅(A1番出口)の他に仲御徒町駅(3番出口)徒歩5分、上野御徒町駅(A8番出口)徒歩5分で利用も可能です。

近隣のエリア・駅から探す