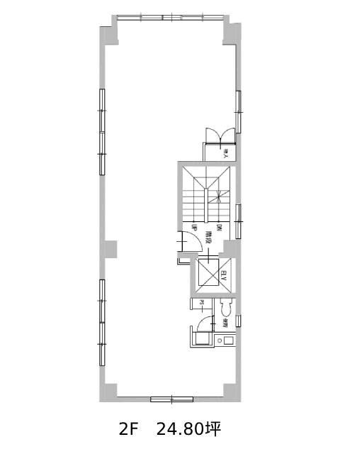
2階は現在募集がありません
岡本ビル 2階
物件概要
岡本ビルのテナント募集中区画
現在、空室がございません。
アクセス
岡本ビルの物件情報
岡本ビル(台東区雷門)は浅草駅(A4番出口)から徒歩3分の賃貸オフィスです。岡本ビルは浅草駅(A4番出口)の他に田原町駅(3番出口)徒歩6分、蔵前駅(A5番出口)徒歩9分で利用も可能です。

