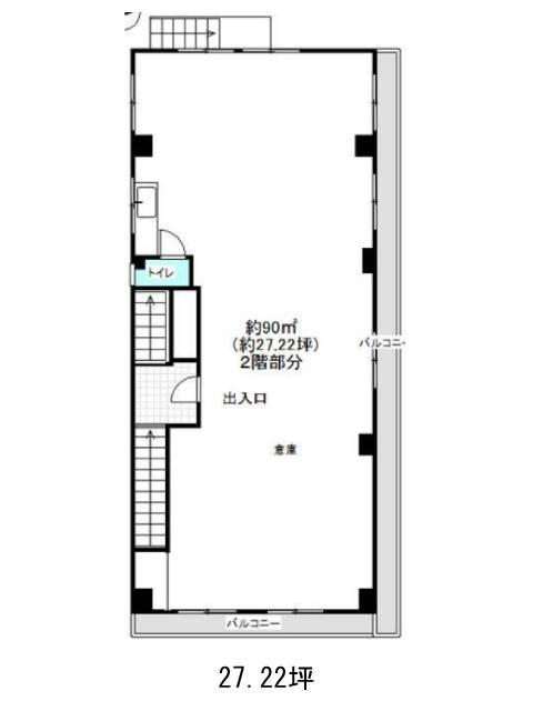
樋口ビル 2階
物件概要
樋口ビルのテナント募集中区画
| 階数 | 面積 | 賃料(共益費含む) | 保証金 | 入居可能日 | 検討リスト | 詳細 |
|---|---|---|---|---|---|---|
| 2 | 27.22坪 | 205,000円/月(7,531円/坪) | 18万円 | 相談 |
…新着物件
アクセス
樋口ビルの物件情報
樋口ビル(大田区中央)は池上駅(北口)から徒歩11分の賃貸オフィスです。

