5階は現在募集がありません
モリイチビル 5階
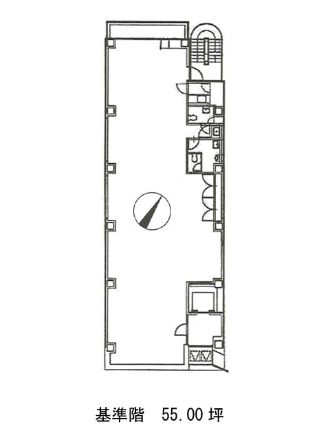
物件概要
モリイチビルのテナント募集中区画
現在、空室がございません。
アクセス
モリイチビルの物件情報
モリイチビル(中央区京橋)は京橋駅(7番出口)から徒歩3分の賃貸オフィスです。
モリイチビルは京橋駅(7番出口)の他に日本橋駅(B3番出口)徒歩5分、宝町駅(A7番出口)徒歩6分で利用も可能です。


