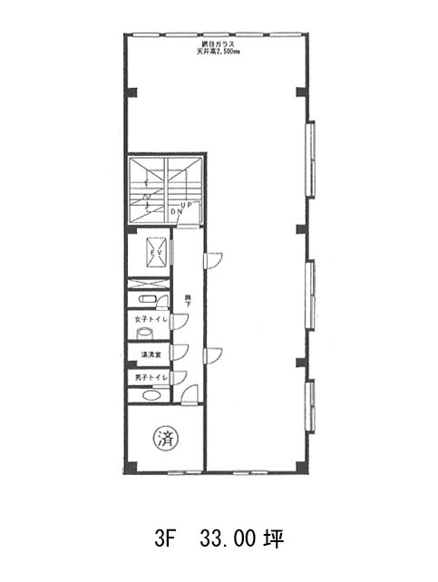
3階は現在募集がありません
藤木ビル 3階
物件概要
藤木ビルのテナント募集中区画
現在、空室がございません。
アクセス
藤木ビルの物件情報
藤木ビル(中央区京橋)は宝町駅(A7番出口)から徒歩2分の賃貸オフィスです。中央通りと昭和通りの中間ぐらいに位置する、地上6階・地下1階建てのビルです。お隣は京橋区民間です。一方通行の道に面しているので、交通量はそれほど多くはなく、落ち着いた環境です。間取りは5坪から33坪と広さが複数あります。首都高速の宝町ランプに近く、車でのアクセスもしやすい物件です。近隣に宝町駐車場という大規模な地下パーキングがあり、定期利用もできます。藤木ビルは宝町駅(A7番出口)の他に京橋駅(7番出口)徒歩2分、銀座一丁目駅(7番出口)徒歩7分で利用も可能です。

