3階は現在募集がありません
三井住友海上テプコビル 3階
物件概要
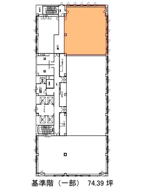
三井住友海上テプコビルのテナント募集中区画
現在、空室がございません。
アクセス
三井住友海上テプコビルの物件情報
三井住友海上テプコビル(中央区京橋)は京橋駅(7番出口)から徒歩3分の賃貸オフィスです。複数路線の利用が可能な、アクセス良好な立地といえるでしょう。このビルの外観はグレーな色合いの重厚感ある造りで、11階建ての基準階が約329坪もあるのでとても存在感のあるビルとなっております。ビル内には、エレベーターが4基あり、上層階への移動がスムーズです。室内は長方形の形をしていて広々としているので、レイアウトもしやすいでしょう。中央通り沿いに立地していて周りにはコンビニや居酒屋などがあるので、仕事終わりに会社の方たちと夕食を楽しむのもいいでしょう。三井住友海上テプコビルは京橋駅(7番出口)の他に宝町駅(A7番出口)徒歩5分、日本橋駅(B3番出口)徒歩6分で利用も可能です。

