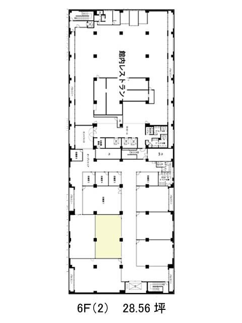
6階 6(2)は現在募集がありません
CROSS DOCK HARUMI 6階 6(2)
物件概要
CROSS DOCK HARUMIのテナント募集中区画
現在、空室がございません。
アクセス
CROSS DOCK HARUMIの物件情報
CROSS DOCK HARUMI(中央区晴海)は市場前駅(出口2)から徒歩14分の賃貸オフィスです。1976年竣工の6階建ビルです。白い外壁に基壇部はグレーで色分けされた、すっきりしたデザインの外観です。EV3基・駐車場・男女別トイレ・個別空調といった設備仕様です。屋上テラスから、周囲の広々とした景色をお楽しみ頂けるでしょう。セキュリティとして機械警備が導入されています。周辺は、オフィス・ホテル・分譲マンションが建ち並ぶエリアとなり、郵便局・スーパー等徒歩圏内にあります。CROSS DOCK HARUMIは市場前駅(出口2)の他に勝どき駅(A3番出口)徒歩14分で利用も可能です。

