3階は現在募集がありません
八重洲セントラルビル 3階
物件概要
八重洲セントラルビルのテナント募集中区画
現在、空室がございません。
アクセス
八重洲セントラルビルの物件情報
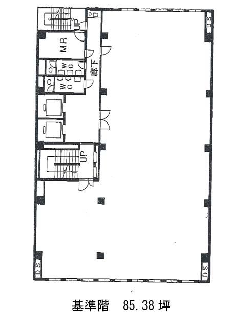
八重洲セントラルビル(中央区日本橋)は日本橋駅(B0番出口)から徒歩3分の賃貸オフィスです。地上9階地下1階建てSRC造、1978年竣工のビルです。ブラウンの外壁で、温かみのある外観をしています。1階に店舗が入っているため、ご案内時の目印となるでしょう。基準階面積は85.38坪。二面採光となります。設備仕様として、EV・駐車場・機械警備・非常階段2箇所・貸室外の男女別トイレがあります。空調は個別空調を導入しています。貸室への出入口が複数あり、動線の自由度が高いでしょう。エントランスは24時まで開錠されています。八重洲セントラルビルは日本橋駅(B0番出口)の他に東京駅(八重洲北口)徒歩5分、大手町駅(B10番出口)徒歩5分で利用も可能です。

