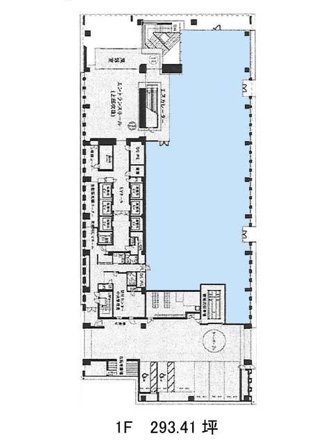
1階は現在募集がありません
日本橋フロント 1階
物件概要
日本橋フロントのテナント募集中区画
現在、空室がございません。
アクセス
日本橋フロントの物件情報
日本橋フロント(中央区日本橋)は日本橋駅(B3番出口)から徒歩3分の賃貸オフィスです。地上11階建て。竣工2008年の物件ということもあり、比較的綺麗で上層階からの眺望は良好です。基準階は約610坪と大変広く、室内は長方形の形をしているので、効率的なレイアウトが組めるでしょう。設備面ではエレベーター6基設置、トイレは男女別、駐車場もあるので、社用車を使う場合も便利です。周辺には、コンビニや飲食店が複数あるため利便性が高く、またビル内にも飲食店や銀行が入っているので、ランチに活用してみるのもいいでしょう。日本橋フロントは日本橋駅(B3番出口)の他に京橋駅(7番出口)徒歩6分、東京駅(八重洲中央口)徒歩7分で利用も可能です。

