3階 301は現在募集がありません
室町フェニックスビル 3階 301
物件概要
室町フェニックスビルのテナント募集中区画
現在、空室がございません。
アクセス
室町フェニックスビルの物件情報
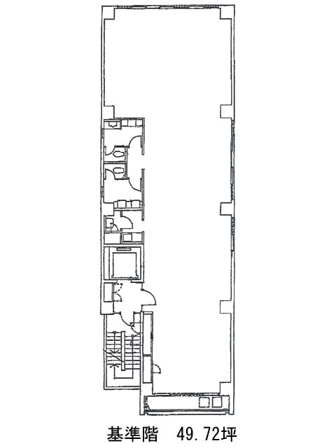
室町フェニックスビル(中央区日本橋室町)は新日本橋駅(2番出口)から徒歩2分の賃貸オフィスです。さわやかな白いタイル張りの外観は、細長くすっきりとした印象です。機械警備・OAフロア・給湯室・貸室内の男女別トイレ・個別空調といった設備仕様で2011年に改修工事がされています。各階にバルコニーがあり執務のリフレッシュとなるでしょう。室内は白い壁面で天井高2640㎜。共用部・EVホールは黒をアクセントにしたシンプルなデザインとなっています。日銀通りと中央通りの間に位置し、周辺に蕎麦屋・おでん屋等味わいのある飲食店が点在しています。室町フェニックスビルは新日本橋駅(2番出口)の他に神田駅(南口)徒歩4分、三越前駅(A10番出口)徒歩4分で利用も可能です。

