6階は現在募集がありません
八重洲加藤ビル 6階
物件概要
八重洲加藤ビルのテナント募集中区画
現在、空室がございません。
アクセス
八重洲加藤ビルの物件情報
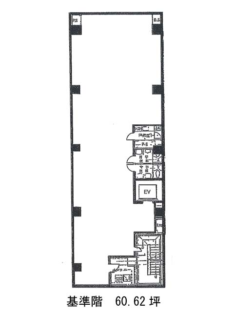
八重洲加藤ビル(中央区八重洲)は日本橋駅(B0番出口)から徒歩3分の賃貸オフィスです。茶色い落ち着いた色調の地上9階地下1階建ビルです。共用部は白を基調とした明るいデザインとなります。コンビニ・飲食店が入居し便利にご利用頂けるでしょう。貸室内は柱が中央に無い整形な間取りです。パントリー・男女別トイレ・バルコニー・EV1基があり、個別空調となります。機械警備があり、オフィスは24時間使用可能です。周辺はオフィスビルの他、飲食店が多いエリアで昼夜問わず幅広いジャンルの食事をお楽しみ頂けるでしょう。八重洲加藤ビルは日本橋駅(B0番出口)の他に東京駅(八重洲北口)徒歩5分、大手町駅(B10番出口)徒歩5分で利用も可能です。

