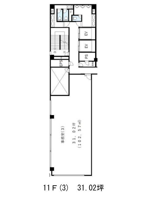
11階 1103は現在募集がありません
最勝ビル 11階 1103
物件概要
最勝ビルのテナント募集中区画
現在、空室がございません。
アクセス
最勝ビルの物件情報
最勝ビル(品川区西五反田)は大崎広小路駅(出口)から徒歩4分の賃貸オフィスです。
最勝ビルは大崎広小路駅(出口)の他に五反田駅(A1番出口)徒歩5分、大崎駅(西口)徒歩11分で利用も可能です。

