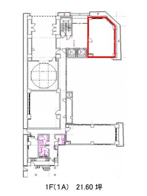
1階 1Aは現在募集がありません
ジブラルタ生命五反田ビル 1階 1A
物件概要
ジブラルタ生命五反田ビルのテナント募集中区画
現在、空室がございません。
アクセス
ジブラルタ生命五反田ビルの物件情報
ジブラルタ生命五反田ビル(品川区西五反田)は五反田駅(A2番出口)から徒歩3分の賃貸オフィスです。1989年竣工、地上8階地下1階建SRC造のビルです。茶色い外壁で、温かみのある外観をしています。窓面が多く、明るい室内になるでしょう。貸室面積は20坪台~80坪台とバリエーション豊かで、多様な規模の会社に対応できるでしょう。EV・駐車場・機械警備・個別空調・OAフロア・貸室外の男女別トイレがあります。天井高は2800㎜と開放感を感じられる室内になるでしょう。2003年、2019年にリニューアルが済んでいます。ジブラルタ生命五反田ビルは五反田駅(A2番出口)の他に大崎広小路駅(出口)徒歩7分、不動前駅(出口)徒歩12分で利用も可能です。

