2階は現在募集がありません
1フロア募集区画あり

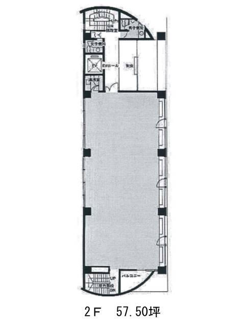
ジニアスビル 2階

前の写真 次の写真

物件概要

物件番号

754-00262-10

物件名

ジニアスビル

所在地

面積

57.50坪

賃料(共益費含)


入居日

募集終了

保証金

礼金

更新料

償却費

竣工

1989年10月

構造

SRC

規模

地上8階/地下1階

トイレ

男女別

空調

個別空調

エレベーター

セキュリティ

駐車場

耐震

新耐震基準

基準階天井高

2550mm

空室延床面積

66.10坪

最寄駅

情報更新日

2025/12/01

ジニアスビルのテナント募集中区画

階数 面積 賃料(共益費含む) 保証金 入居可能日 検討リスト 詳細
4 66.10坪 1,308,778円/月(19,800円/坪) 1,150万円
…新着物件

アクセス

ジニアスビルの物件情報

ジニアスビル(品川区西五反田)は五反田駅(A2番出口)から徒歩4分の賃貸オフィスです。
1989年竣工、地上8階・地下1階建ての鉄骨鉄筋コンクリート造です。目黒川沿いの角地に位置しており、建物の上部にはビル名の記載があり視認性抜群です。グレーを基調とした、スタイリッシュなデザインの外観です。エントランスを入ると色鮮やかなブルーの壁面が印象的なエレベーターホールがあり、エレベーターが1基設置されています。基準階面積は約66坪、L字型の貸室内には真ん中に柱のない無柱空間でレイアウトの自由度が高いでしょう。バルコニーもあるので、お仕事の合間の気分転換に最適です。主な設備としては、個別空調、OAフロア、男女別トイレ、機械警備導入、駐車場も完備しており、車のアクセスもしやすい環境です。
ジニアスビルは五反田駅(A2番出口)の他に大崎広小路駅(出口)徒歩7分、不動前駅(出口)徒歩10分で利用も可能です。

近隣のエリア・駅から探す