ジニアスビルのテナント募集中区画
| 階数 | 面積 | 賃料(共益費含む) | 保証金 | 入居可能日 | 検討リスト | 詳細 |
|---|---|---|---|---|---|---|
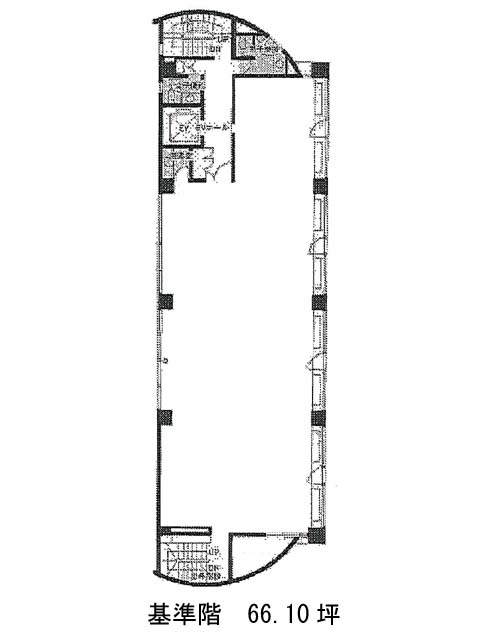
| 4 | 66.10坪 | 1,308,778円/月(19,800円/坪) | 1,150万円 | 即 |
…新着物件
アクセス
ジニアスビルの物件情報
ジニアスビル(品川区西五反田)は五反田駅(A2番出口)から徒歩4分の賃貸オフィスです。1989年竣工、地上8階・地下1階建ての鉄骨鉄筋コンクリート造です。目黒川沿いの角地に位置しており、建物の上部にはビル名の記載があり視認性抜群です。グレーを基調とした、スタイリッシュなデザインの外観です。エントランスを入ると色鮮やかなブルーの壁面が印象的なエレベーターホールがあり、エレベーターが1基設置されています。基準階面積は約66坪、L字型の貸室内には真ん中に柱のない無柱空間でレイアウトの自由度が高いでしょう。バルコニーもあるので、お仕事の合間の気分転換に最適です。主な設備としては、個別空調、OAフロア、男女別トイレ、機械警備導入、駐車場も完備しており、車のアクセスもしやすい環境です。ジニアスビルは五反田駅(A2番出口)の他に大崎広小路駅(出口)徒歩7分、不動前駅(出口)徒歩10分で利用も可能です。

