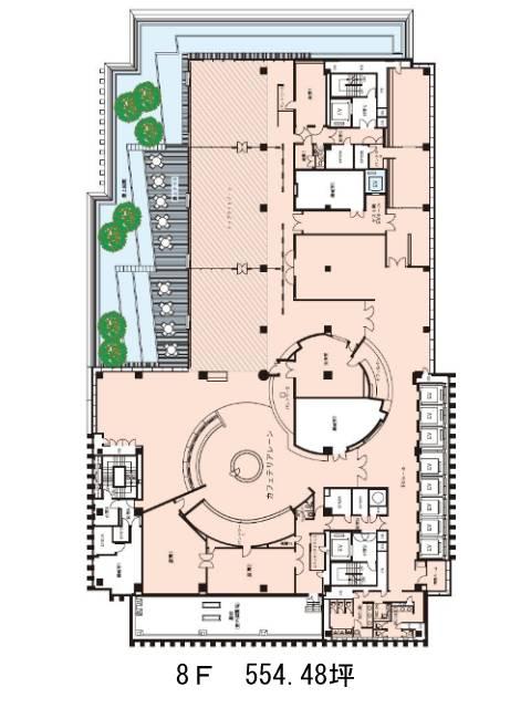
8階は現在募集がありません
DNP五反田ビル 8階
物件概要
DNP五反田ビルのテナント募集中区画
現在、空室がございません。
アクセス
DNP五反田ビルの物件情報
DNP五反田ビル(品川区西五反田)は五反田駅(A2番出口)から徒歩7分の賃貸オフィスです。
2006年竣工、地上25階・地下2階建の大型物件です。建物周辺には緑も多く、美しい庭園、水景がデザインされておりオフィスワーカーの癒しの場になりそうです。広々とした明るいエントランスと高級感のあるエレベーターホールは来訪者にも好印象でしょう。エレベーターは乗用10基設置。基準階面積は各階により異なりますが、主な設備面は、男女別トイレ、OAフロア250mm、床荷重500kg/m?、光ケーブル引き込み、セントラル空調・個別空調(一部)、セキュリティは24時間常駐管理で安心です。また、117台収容可能な大規模な駐車場も完備しており申し分のないハイスペックオフィスです。
DNP五反田ビルは五反田駅(A2番出口)の他に不動前駅(出口)徒歩9分、目黒駅(出口2)徒歩10分で利用も可能です。

