三徳ビルのテナント募集中区画
| 階数 | 面積 | 賃料(共益費含む) | 保証金 | 入居可能日 | 検討リスト | 詳細 |
|---|---|---|---|---|---|---|
| 5 | 48.60坪 | 641,520円/月(13,200円/坪) | 291万円 | 即 |
…新着物件
アクセス
三徳ビルの物件情報
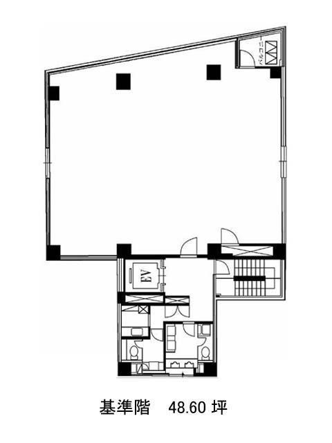
三徳ビル(品川区北品川)は北品川駅(出口)から徒歩2分の賃貸オフィスです。駅至近の好立地。1994年竣工、鉄筋コンクリート造の地上7階建てです。第一京浜に面しており、外観にビル名の記載もあるので視認性は抜群です。窓面も多く、採光良好。基準階面積は約48坪あり、台形に近い形状の貸室内にはレイアウトの支障になる柱はないため、効率よく使用できそうです。空調は個別空調、男女別トイレ設置、エレベーターは1基あります。徒歩圏内にコンビニもあり買い物に便利です。三徳ビルは北品川駅(出口)の他に新馬場駅(北口)徒歩6分、品川駅(高輪口)徒歩12分で利用も可能です。

