5階 501は現在募集がありません
発陽ビル 5階 501
物件概要
発陽ビルのテナント募集中区画
現在、空室がございません。
アクセス
発陽ビルの物件情報
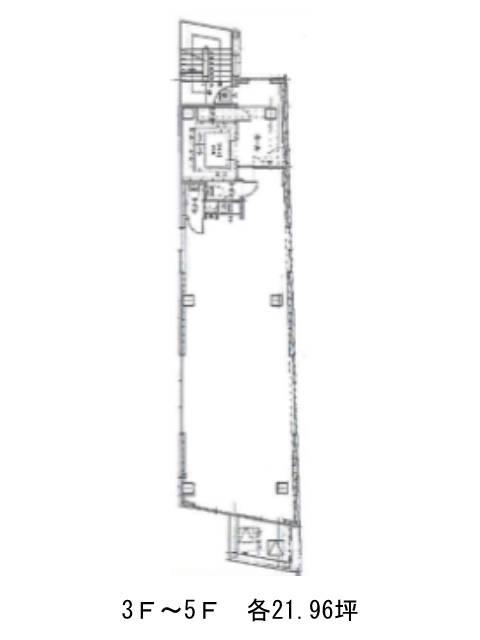
発陽ビル(文京区春日)は後楽園駅(6番出口)から徒歩10分の賃貸オフィスです。発陽ビルは後楽園駅(6番出口)の他に春日駅(6番出口)徒歩10分、飯田橋駅(C3番出口)徒歩12分で利用も可能です。

