3階は現在募集がありません
文京ガーデンゲートタワー SA棟 3階
物件概要
文京ガーデンゲートタワー SA棟のテナント募集中区画
現在、空室がございません。
アクセス
文京ガーデンゲートタワー SA棟の物件情報
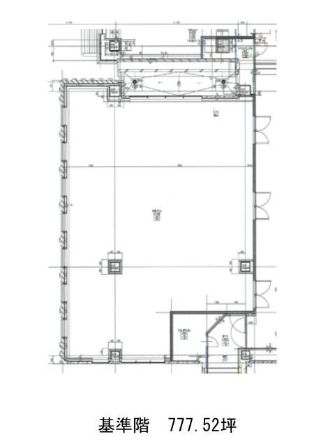
文京ガーデンゲートタワー SA棟(文京区小石川)は春日駅(A3番出口)から徒歩2分の賃貸オフィスです。2023年竣工、地上23階地下2階建ての築浅ビルです。角地に建ち、視認性が高いでしょう。スタイリッシュな外観をしています。基準階面積は777.52坪です。設備仕様として、EV・個別空調・貸室外の男女別トイレがそろいます。天井高2800㎜の室内は、明るく開放感があるでしょう。ビル内に飲食店やコンビニが入り、ランチにご利用頂けるでしょう。ビル内に専門学校が入り、多くの行き交い活気ある雰囲気をしています。文京ガーデンゲートタワー SA棟は春日駅(A3番出口)の他に後楽園駅(6番出口)徒歩5分、水道橋駅(A5番出口)徒歩9分で利用も可能です。

