2階 201は現在募集がありません
ユニオン小石川第2ビル 2階 201
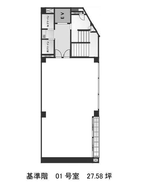
物件概要
ユニオン小石川第2ビルのテナント募集中区画
現在、空室がございません。
アクセス
ユニオン小石川第2ビルの物件情報
ユニオン小石川第2ビル(文京区小石川)は後楽園駅(5番出口)から徒歩2分の賃貸オフィスです。ユニオン小石川第2ビルは後楽園駅(5番出口)の他に春日駅(6番出口)徒歩3分、水道橋駅(A5番出口)徒歩9分で利用も可能です。

