マツモトビル 3階
物件概要
物件番号
786-00046-20物件名
マツモトビル所在地
- 東京都文京区湯島3-8-9
- アクセスマップ
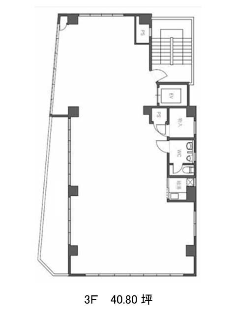
面積
40.80坪賃料(共益費含)
月額538,558円(13,200円/坪)
入居日
即保証金
2,570,400円礼金
なし更新料
新1ケ月償却費
2ケ月竣工
1986年9月構造
SRC規模
地上5階トイレ
男女別空調
個別空調エレベーター
有セキュリティ
有駐車場
有耐震
新耐震基準基準階天井高
3000mm空室延床面積
40.80坪情報更新日
2025/11/26マツモトビルのテナント募集中区画
| 階数 | 面積 | 賃料(共益費含む) | 保証金 | 入居可能日 | 検討リスト | 詳細 |
|---|---|---|---|---|---|---|
| 3 | 40.80坪 | 538,558円/月(13,200円/坪) | 257万円 | 即 |
…新着物件
アクセス
マツモトビルの物件情報
マツモトビル(文京区湯島)は湯島駅(5番出口)から徒歩4分の賃貸オフィスです。1986年竣工の地上5階、地下1階建て、鉄骨鉄筋コンクリート造のビルです。新耐震基準を満たしているため、安心です。エレベーターは1基、個別空調、OAフロア、セキュリティは機械警備です。駐車場もあるため、社用車を利用される場合はとても便利です。周辺には飲食店が複数あり、徒歩圏内にコンビニもあるため、お昼には困らないでしょう。貸室内は柱が壁側にあるため、比較的自由なレイアウトを組むことが出来そうです。マツモトビルは湯島駅(5番出口)の他に末広町駅(3番出口)徒歩5分、上野広小路駅(A1番出口)徒歩9分で利用も可能です。

