5階は現在募集がありません
エルピスビル 5階
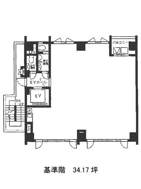
物件概要
エルピスビルのテナント募集中区画
現在、空室がございません。
アクセス
エルピスビルの物件情報
エルピスビル(文京区本駒込)は駒込駅(1番出口)から徒歩2分の賃貸オフィスです。エルピスビルは駒込駅(1番出口)の他に千石駅(A4番出口)徒歩12分、巣鴨駅(A1番出口)徒歩13分で利用も可能です。

