5階は現在募集がありません
大樹生命亀戸ビル 5階
物件概要
大樹生命亀戸ビルのテナント募集中区画
現在、空室がございません。
アクセス
大樹生命亀戸ビルの物件情報
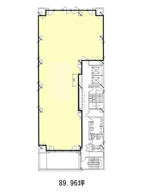
大樹生命亀戸ビル(江東区亀戸)は亀戸駅(北口)から徒歩6分の賃貸オフィスです。1991年竣工、地上9階地下1階建SRC造のビルです。壁中央部に大きなガラスが並び、スタイリッシュな外観をしています。室内には十分な採光が入るでしょう。貸室は無柱空間で使い勝手がよいでしょう。設備仕様として、EV2基・駐車場・個別空調・貸室外の男女別トイレがあります。エントランスまわりはグレーのタイル貼りですっきりとしたデザインをしています。近隣にミニスーパーやコンビニがあり、ランチにご利用頂けるでしょう。大樹生命亀戸ビルは亀戸駅(北口)の他に錦糸町駅(2番出口)徒歩11分、西大島駅(A3番出口)徒歩15分で利用も可能です。

