6階は現在募集がありません

大樹生命亀戸ビル 6階

前の写真 次の写真

物件概要

物件番号

79-00011-90

物件名

大樹生命亀戸ビル

所在地

面積

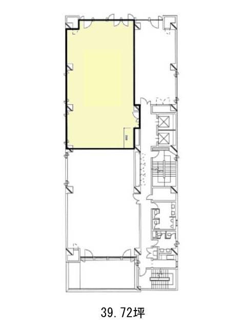
39.72坪

賃料(共益費含)


入居日

募集終了

保証金

礼金

更新料

償却費

竣工

1991年7月

構造

SRC

規模

地上9階/地下1階

トイレ

男女別

空調

個別空調

エレベーター

セキュリティ

駐車場

耐震

新耐震基準

基準階天井高

2500mm

空室延床面積

最寄駅

情報更新日

2025/05/26

大樹生命亀戸ビルのテナント募集中区画

現在、空室がございません。

アクセス

大樹生命亀戸ビルの物件情報

大樹生命亀戸ビル(江東区亀戸)は亀戸駅(北口)から徒歩6分の賃貸オフィスです。
1991年竣工、地上9階地下1階建SRC造のビルです。壁中央部に大きなガラスが並び、スタイリッシュな外観をしています。室内には十分な採光が入るでしょう。貸室は無柱空間で使い勝手がよいでしょう。設備仕様として、EV2基・駐車場・個別空調・貸室外の男女別トイレがあります。エントランスまわりはグレーのタイル貼りですっきりとしたデザインをしています。近隣にミニスーパーやコンビニがあり、ランチにご利用頂けるでしょう。
大樹生命亀戸ビルは亀戸駅(北口)の他に錦糸町駅(2番出口)徒歩11分、西大島駅(A3番出口)徒歩15分で利用も可能です。

近隣のエリア・駅から探す