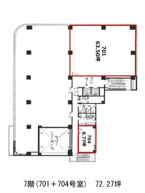
7階 701・704は現在募集がありません
タニビル 7階 701・704
物件概要
タニビルのテナント募集中区画
現在、空室がございません。
アクセス
タニビルの物件情報
タニビル(江東区亀戸)は亀戸駅(北口)から徒歩7分の賃貸オフィスです。地上8階建SRC造、1988年竣工のビルです。新耐震基準を満たしています。グレーの外壁ですっきりとした外観をしています。貸室は60坪台や110坪台等バリエーションがあり、多様なニーズにお応えできるでしょう。設備仕様として、EV・駐車場・個別空調・男女別トイレ・OAフロアがあり、セキュリティとして安心の機械警備が導入されています。五之橋通りの交差点に建ち視認性が高いでしょう。周囲には飲食店が充実しておりランチにご利用頂けます。タニビルは亀戸駅(北口)の他に西大島駅(A3番出口)徒歩9分で利用も可能です。

