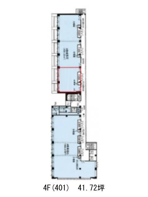
4階 401は現在募集がありません
立花亀戸ビル 4階 401
物件概要
立花亀戸ビルのテナント募集中区画
現在、空室がございません。
アクセス
立花亀戸ビルの物件情報
立花亀戸ビル(江東区亀戸)は亀戸駅(北口)から徒歩3分の賃貸オフィスです。明治通りに面し、ダークグレーのタイル張りでビル前面のガラス張りが特徴的な視認性抜群のビルです。駅前すぐの好立地のため、コンビニ、銀行、飲食店はもちろんカフェ、ショッピングモール、ドラッグストアと周辺環境は申し分ありません。1987年竣工、地上9階建ての鉄骨造で、耐震基準を満たしております。基準階約259坪で、OAフロア、個別空調、男女別トイレと充実の設備で、エレベーターは3基設置、有人及び機械警備で快適かつ安全にお過ごしすることが可能です。立花亀戸ビルは亀戸駅(北口)の他に錦糸町駅(4番出口)徒歩13分、亀戸水神駅(出口)徒歩14分で利用も可能です。

