3階は現在募集がありません
アユミビル 3階
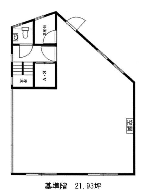
物件概要
アユミビルのテナント募集中区画
現在、空室がございません。
アクセス
アユミビルの物件情報
アユミビル(豊島区池袋)は池袋駅(C1番出口)から徒歩3分の賃貸オフィスです。アユミビルは池袋駅(C1番出口)の他に要町駅(5番出口)徒歩10分で利用も可能です。

