8階は現在募集がありません
THE KINDAI 8 IKEBUKURO 8階
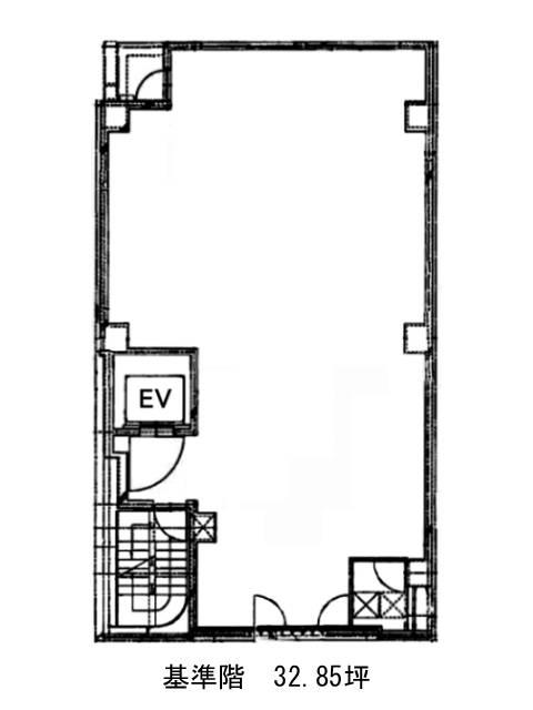
物件概要
THE KINDAI 8 IKEBUKUROのテナント募集中区画
現在、空室がございません。
アクセス
THE KINDAI 8 IKEBUKUROの物件情報
THE KINDAI 8 IKEBUKURO(豊島区東池袋)は池袋駅(23番出口)から徒歩3分の賃貸オフィスです。
THE KINDAI 8 IKEBUKUROは池袋駅(23番出口)の他に東池袋駅(1番出口)徒歩11分、東池袋四丁目駅(停留所)徒歩14分で利用も可能です。


