4階は現在募集がありません
KYTビル 4階
物件概要
KYTビルのテナント募集中区画
現在、空室がございません。
アクセス
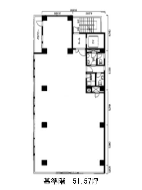
KYTビルの物件情報
KYTビル(豊島区東池袋)は池袋駅(29番出口)から徒歩9分の賃貸オフィスです。KYTビルは池袋駅(29番出口)の他に向原駅(停留所)徒歩10分、東池袋駅(7番出口)徒歩10分で利用も可能です。

