2階は現在募集がありません
スエル池袋 2階
物件概要
スエル池袋のテナント募集中区画
現在、空室がございません。
アクセス
スエル池袋の物件情報
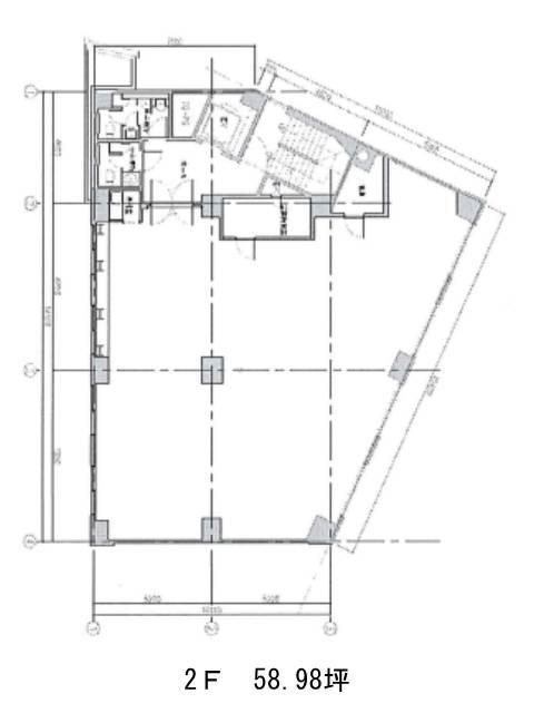
スエル池袋(豊島区東池袋)は池袋駅(29番出口)から徒歩6分の賃貸オフィスです。1973年竣工、地上9階地下1階建てSRC造のビルです。耐震補強工事が実施されています。貸室は58.98坪のものがそろい、中規模の事務所をお探しの企業様に良いでしょう。EV・機械警備・個別空調・OAフロア・貸室外の男女別トイレといった設備仕様がそろいます。支柱が部屋の中央に無い間取りで、オフィス家具の配置がしやすいでしょう。6~9階はセットアップオフィス(什器付き)の為、移転後に早期の業務開始ができるでしょう。スエル池袋は池袋駅(29番出口)の他に東池袋駅(1番出口)徒歩11分、向原駅(停留所)徒歩13分で利用も可能です。

