6階 601は現在募集がありません
セイコーサンシャインビルXⅡ 6階 601
物件概要
物件番号
805-00051-30物件名
セイコーサンシャインビルXⅡ所在地
- 東京都豊島区東池袋1-30-6
- アクセスマップ
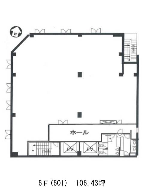
面積
106.43坪賃料(共益費含)
−入居日
募集終了保証金
−礼金
−更新料
−償却費
−竣工
1990年5月構造
SRC規模
地上11階/地下2階トイレ
男女別空調
個別空調エレベーター
有セキュリティ
有駐車場
無耐震
新耐震基準基準階天井高
2600mm空室延床面積
−情報更新日
2025/06/27セイコーサンシャインビルXⅡのテナント募集中区画
現在、空室がございません。
アクセス
セイコーサンシャインビルXⅡの物件情報
セイコーサンシャインビルXⅡ(豊島区東池袋)は池袋駅(29番出口)から徒歩5分の賃貸オフィスです。1990年竣工、地上11階、地下2階建ての鉄骨鉄筋コンクリート造のビルです。新耐震基準を満たしているため、耐震性も安心です。明治通りから少し入った所に位置し、周辺にはオフィスビルが立ち並ぶと共に公園も近くにあるため、休憩時のリフレッシュも可能です。ビル1階にはコンビニ、2階には飲食店が入っており、利便性がとても高いです。設備は、OAフロア、個別空調、トイレが男女別です。貸室内は白を基調とした清潔感のある雰囲気です。セイコーサンシャインビルXⅡは池袋駅(29番出口)の他に東池袋駅(1番出口)徒歩9分、東池袋四丁目駅(停留所)徒歩12分で利用も可能です。

