3階は現在募集がありません
MT3ビル 3階
物件概要
MT3ビルのテナント募集中区画
現在、空室がございません。
アクセス
MT3ビルの物件情報
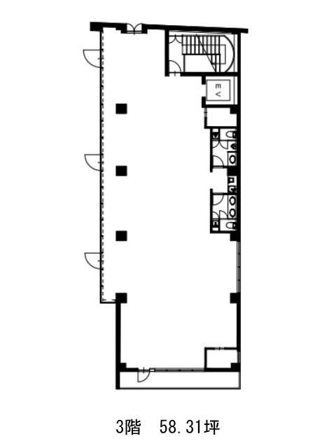
MT3ビル(目黒区三田)は恵比寿駅(東口)から徒歩8分の賃貸オフィスです。2004年竣工、地上3階地下1階建てRC造のビルです。ガラス張りでスタイリッシュな外観をしています。1階にフレンチレストランが入り、ご案内時の目印としてわかりやすいでしょう。貸室は50坪台となり、中規模の事務所をお探しの方によいでしょう。1フロア1テナントです。設備仕様として、EV1基・空調・タイルカーペット・非常階段2箇所がございます。共用部はダークグレーを基調とした高級感のある内装です。外観に植栽があしらわれビルの美観を高めています。MT3ビルは恵比寿駅(東口)の他に目黒駅(JR連絡口)徒歩13分で利用も可能です。

