5階は現在募集がありません
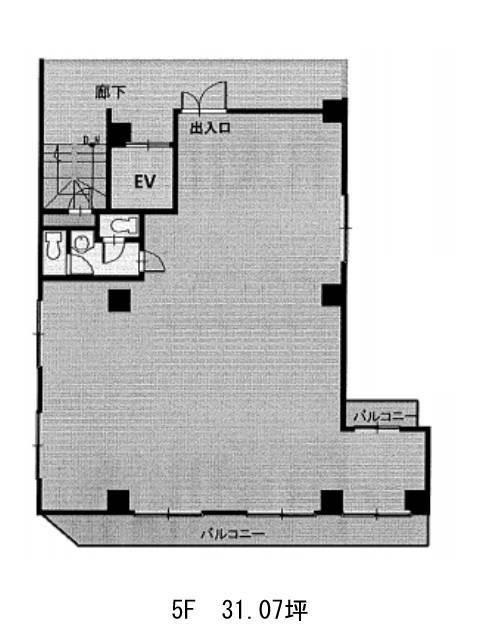
ゴーベルビル 5階
物件概要
ゴーベルビルのテナント募集中区画
現在、空室がございません。
アクセス
ゴーベルビルの物件情報
ゴーベルビル(江東区森下)は菊川駅(A2番出口)から徒歩7分の賃貸オフィスです。ゴーベルビルは菊川駅(A2番出口)の他に清澄白河駅(B2番出口)徒歩8分、森下駅(A7番出口)徒歩9分で利用も可能です。

