5階は現在募集がありません
神谷町麻布台ビル 5階
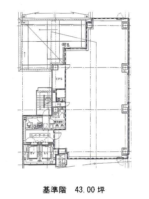
物件概要
神谷町麻布台ビルのテナント募集中区画
現在、空室がございません。
アクセス
神谷町麻布台ビルの物件情報
神谷町麻布台ビル(港区麻布台)は神谷町駅(2番出口)から徒歩3分の賃貸オフィスです。神谷町麻布台ビルは神谷町駅(2番出口)の他に六本木一丁目駅(2番出口)徒歩10分、虎ノ門ヒルズ駅(A1番出口)徒歩11分で利用も可能です。

