5階は現在募集がありません
新栄宮益ビル 5階
物件概要
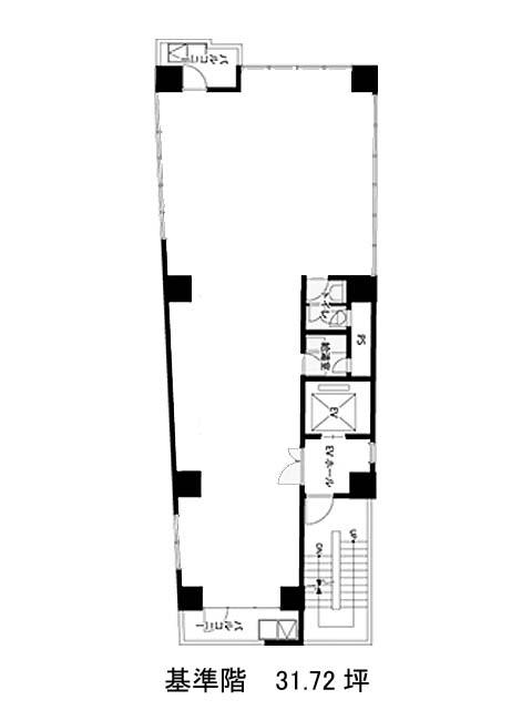
新栄宮益ビルのテナント募集中区画
現在、空室がございません。
アクセス
新栄宮益ビルの物件情報
新栄宮益ビル(渋谷区渋谷)は渋谷駅(B4番出口)から徒歩4分の賃貸オフィスです。新栄宮益ビルは渋谷駅(B4番出口)の他に表参道駅(B2番出口)徒歩9分、明治神宮前駅(7番出口)徒歩15分で利用も可能です。

