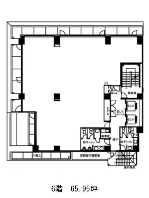
6階は現在募集がありません
ウエノU-PALビル 6階
物件概要
ウエノU-PALビルのテナント募集中区画
現在、空室がございません。
アクセス
ウエノU-PALビルの物件情報
ウエノU-PALビル(台東区東上野)は新御徒町駅(A1番出口)から徒歩4分の賃貸オフィスです。ウエノU-PALビルは新御徒町駅(A1番出口)の他に仲御徒町駅(3番出口)徒歩5分、上野御徒町駅(A8番出口)徒歩5分で利用も可能です。

