平成本社海岸ビルディング 5階
物件概要
物件番号
119-00085-2物件名
平成本社海岸ビルディング所在地
- 東京都港区海岸2-6-29
- アクセスマップ
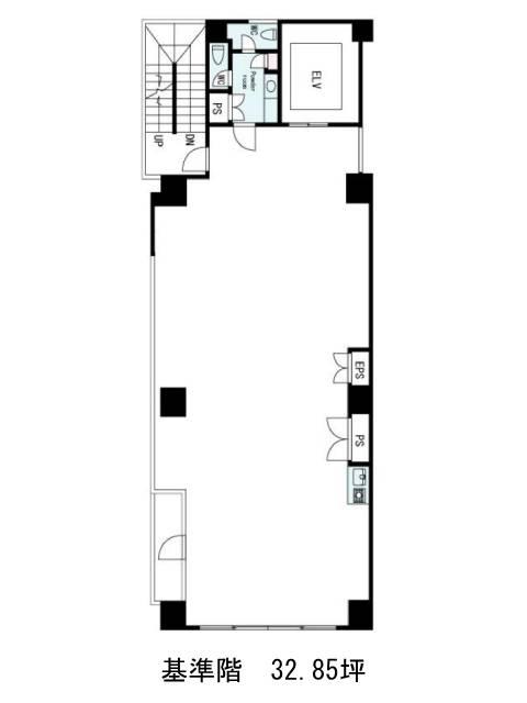
面積
32.85坪賃料(共益費含)
月額473,007円(14,399円/坪)
入居日
2025年12月上旬保証金
860,013円礼金
なし更新料
新1ケ月償却費
1.5ケ月竣工
1991年2月構造
SRC規模
地上6階トイレ
男女別空調
個別空調エレベーター
有セキュリティ
有駐車場
無耐震
新耐震基準基準階天井高
2600mm空室延床面積
65.70坪情報更新日
2025/07/16平成本社海岸ビルディングのテナント募集中区画
| 階数 | 面積 | 賃料(共益費含む) | 保証金 | 入居可能日 | 検討リスト | 詳細 |
|---|---|---|---|---|---|---|
| 4 | 32.85坪 | 434,524円/月(13,227円/坪) | 79万円 | 2025年12月上旬 | ||
| 5 | 32.85坪 | 473,007円/月(14,399円/坪) | 86万円 | 2025年12月上旬 |
…新着物件
アクセス
平成本社海岸ビルディングの物件情報
平成本社海岸ビルディング(港区海岸)は日の出駅(東口)から徒歩3分の賃貸オフィスです。平成本社海岸ビルディングは日の出駅(東口)の他に竹芝駅(西口)徒歩8分、浜松町駅(南口1)徒歩12分で利用も可能です。

