4階は現在募集がありません
1フロア募集区画あり

虎ノ門1丁目MGビル 4階

前の写真 次の写真

物件概要

物件番号

122-00282-60

物件名

虎ノ門1丁目MGビル

所在地

面積

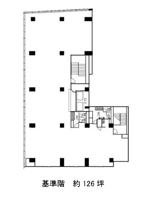
126.20坪

賃料(共益費含)


入居日

募集終了

保証金

礼金

更新料

償却費

竣工

1964年

構造

SRC

規模

地上10階/地下3階

トイレ

男女別

空調

個別空調

エレベーター

セキュリティ

駐車場

耐震

耐震補強済み

基準階天井高

2480mm

空室延床面積

126.63坪

最寄駅

情報更新日

2025/10/06

虎ノ門1丁目MGビルのテナント募集中区画

階数 面積 賃料(共益費含む) 保証金 入居可能日 検討リスト 詳細
7 126.63坪 3,203,739円/月(25,300円/坪) 2,963万円
…新着物件

アクセス

虎ノ門1丁目MGビルの物件情報

虎ノ門1丁目MGビル(港区虎ノ門)は虎ノ門ヒルズ駅(B1番出口)から徒歩2分の賃貸オフィスです。
虎ノ門1丁目MGビルは虎ノ門ヒルズ駅(B1番出口)の他に虎ノ門駅(2a番出口)徒歩3分、霞ケ関駅(A12番出口)徒歩7分で利用も可能です。

近隣のエリア・駅から探す