3階 3Aは現在募集がありません
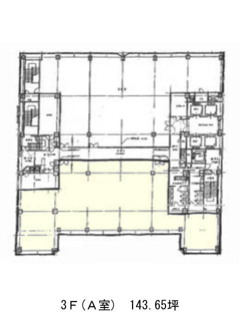
日新ビル 3階 3A
物件概要
日新ビルのテナント募集中区画
現在、空室がございません。
アクセス
日新ビルの物件情報
日新ビル(港区港南)は品川駅(港南口)から徒歩5分の賃貸オフィスです。S造地上14階地下2階建、1993年竣工のビルです。グレーの壁面の中央にガラスが配置され、重厚感のある外観をしています。四面に窓があり、室内に十分な明かりがとれるでしょう。各階、2箇所に水まわりがあり便利にご利用頂けるでしょう。EV5基・駐車場64台(平面・機械式)・貸室外の男女別トイレ・空調(セントラル+個別空調)・OAフロアといった充実の設備仕様です。セキュリティは、機械警備・有人警備の併用で24時間利用可能なオフィスです。

