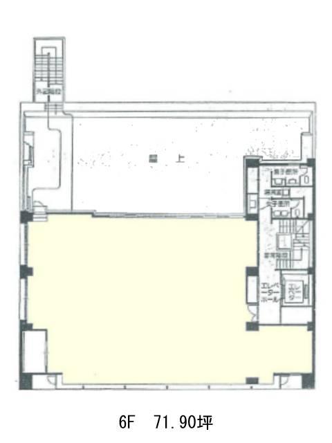
6階は現在募集がありません
三田ソネットビル 6階
物件概要
三田ソネットビルのテナント募集中区画
現在、空室がございません。
アクセス
三田ソネットビルの物件情報
三田ソネットビル(港区三田)は麻布十番駅(3番出口)から徒歩2分の賃貸オフィスです。1986年竣工。外観は全体的に重厚感のある色合いで、シンプルなデザインとなっております。エントランスホールやエレベーターホールは清潔感があり、落ち着いた空間となっております。室内は、基準階が約114坪あり、長方形の整形オフィスのため、効率の良いレイアウトが組めそうです。ビル内にはOAフロアが備えられており、トイレは男女別となっております。また周辺にはコンビニや飲食店などがあるため、ランチも楽しめるでしょう。三田ソネットビルは麻布十番駅(3番出口)の他に赤羽橋駅(中之橋口)徒歩8分、芝公園駅(A2番出口)徒歩14分で利用も可能です。

