10階は現在募集がありません
三田ヒルサイドビル 10階
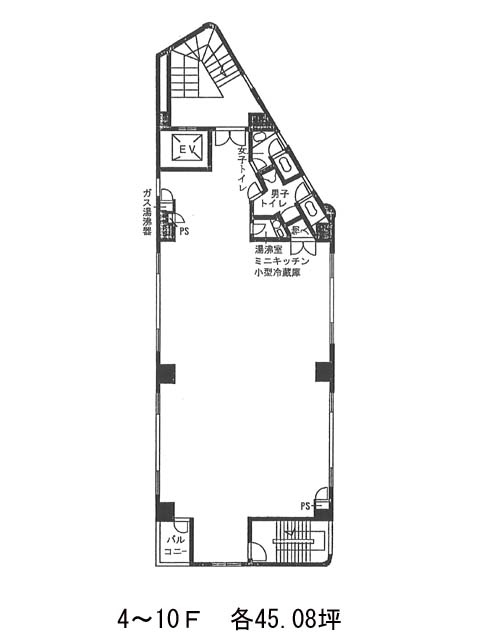
物件概要
三田ヒルサイドビルのテナント募集中区画
現在、空室がございません。
アクセス
三田ヒルサイドビルの物件情報
三田ヒルサイドビル(港区三田)は三田駅(A3番出口)から徒歩7分の賃貸オフィスです。三田ヒルサイドビルは三田駅(A3番出口)の他に田町駅(三田口)徒歩9分、白金高輪駅(2番出口)徒歩12分で利用も可能です。

