7階は現在募集がありません
1フロア募集区画あり

一星芝ビルディング 7階

前の写真 次の写真

物件概要

物件番号

126-00110-70

物件名

一星芝ビルディング

所在地

面積

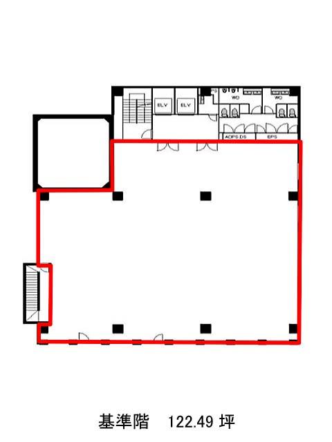
122.49坪

賃料(共益費含)


入居日

募集終了

保証金

礼金

更新料

償却費

竣工

1999年3月

構造

S造

規模

地上8階

トイレ

男女別

空調

個別空調

エレベーター

セキュリティ

駐車場

耐震

新耐震基準

基準階天井高

2800mm

空室延床面積

122.49坪

最寄駅

情報更新日

2025/11/06

一星芝ビルディングのテナント募集中区画

階数 面積 賃料(共益費含む) 保証金 入居可能日 検討リスト 詳細
6 122.49坪 応相談(応相談) 応相談
…新着物件

アクセス

一星芝ビルディングの物件情報

一星芝ビルディング(港区芝)は芝公園駅(A1番出口)から徒歩6分の賃貸オフィスです。
レンガ調の温かみある素材感に、縦にスッと伸びるガラス面がリズミカルに並んだ外観は、どこかクラシカルでありながらモダンな雰囲気も兼ね備えた佇まい。通りを歩く人の視線を自然と引き寄せる、ほどよい存在感があります。ビル前面は歩道に面しており、視界も開けているため、来客対応のしやすさもポイントです。
1階共用部のエレベーターホールも広めに設計されており、訪問時の第一印象も上々。基準階は約122坪の整形な間取りで、室内には柱がありますが、レイアウトの工夫次第で多様なワークスタイルに対応できます。天井高は2800mm、床はOAフロア仕様となっており、機能面も安心です。
水回りやエレベーターは執務エリアの外に配置されているため、業務スペースをしっかり確保しながら集中できる環境が整います。機械警備によるセキュリティや駐車場の完備も嬉しいポイントです。
一星芝ビルディングは芝公園駅(A1番出口)の他に大門駅(A3番出口)徒歩7分、浜松町駅(南口1)徒歩8分で利用も可能です。

近隣のエリア・駅から探す