6階は現在募集がありません
芝256スクエアビル(CRD芝ビル) 6階
物件概要
物件番号
126-00118-60物件名
芝256スクエアビル(CRD芝ビル)所在地
- 東京都港区芝2-5-6
- アクセスマップ
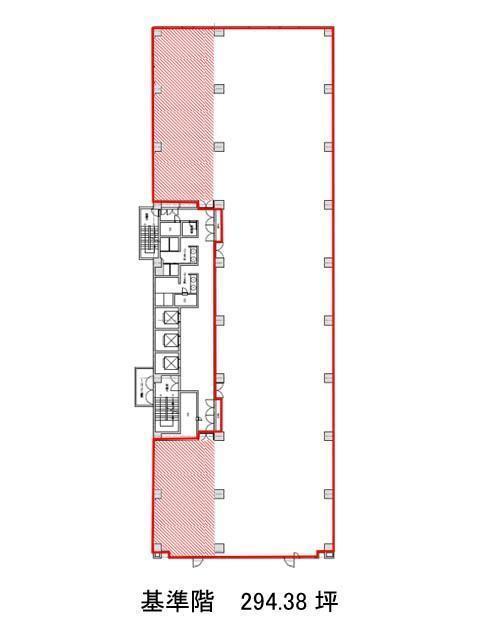
面積
294.38坪賃料(共益費含)
−入居日
募集終了保証金
−礼金
−更新料
−償却費
−竣工
1987年8月構造
SRC規模
地上8階/地下1階トイレ
男女別空調
セントラル+個別空調エレベーター
有セキュリティ
駐車場
有耐震
新耐震基準基準階天井高
2500mm空室延床面積
−情報更新日
2025/09/25芝256スクエアビル(CRD芝ビル)のテナント募集中区画
現在、空室がございません。
アクセス
芝256スクエアビル(CRD芝ビル)の物件情報
芝256スクエアビル(CRD芝ビル)(港区芝)は芝公園駅(A1番出口)から徒歩4分の賃貸オフィスです。1987年竣工、地上8階建ての鉄骨鉄筋コンクリート造のビルです。前面がガラス張りになっているため、存在感があり視認性が高いです。エントランスホールやエレベーターホールは広々としていて高級感もあり、オシャレな空間となっております。ビル内にはOAフロアが備えられており、トイレは男女別となっております。駐車場も完備してあるため、車の利用もしやすい環境となっております。また周辺には、コンビニや飲食店などがあるため、ランチも楽しめるでしょう。芝256スクエアビル(CRD芝ビル)は芝公園駅(A1番出口)の他に大門駅(A6番出口)徒歩8分、三田駅(A9番出口)徒歩9分で利用も可能です。

