8階は現在募集がありません
芝アネックスビル 8階
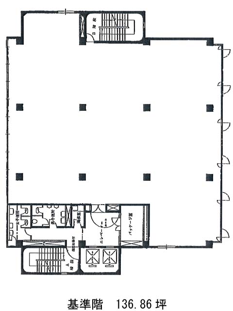
物件概要
芝アネックスビルのテナント募集中区画
現在、空室がございません。
アクセス
芝アネックスビルの物件情報
芝アネックスビル(港区芝)は芝公園駅(A2番出口)から徒歩3分の賃貸オフィスです。芝アネックスビルは芝公園駅(A2番出口)の他に三田駅(A9番出口)徒歩8分、大門駅(A6番出口)徒歩9分で利用も可能です。

