5階は現在募集がありません
芝公園STKビル 5階
物件概要
芝公園STKビルのテナント募集中区画
現在、空室がございません。
アクセス
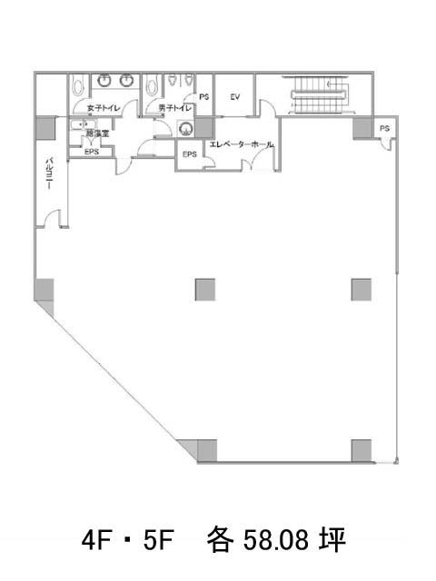
芝公園STKビルの物件情報
芝公園STKビル(港区芝)は芝公園駅(A1番出口)から徒歩3分の賃貸オフィスです。1993年竣工、地上6階建てのビルです。外観は全体的にシックな色合いで、グレーの石張りとライン状に並んだガラスウォールが美しい建物です。エントランスホールやエレベーターホールは清潔感と高級感が感じられます。ビル内にはOAフロアが備えられており、トイレは男女別、セキュリティは機械警備を導入しております。耐震性も新耐震基準であるため、安心してご入居いただけます。また周辺には、コンビニや飲食店などがあるため、ランチも楽しめるでしょう。芝公園STKビルは芝公園駅(A1番出口)の他に三田駅(A9番出口)徒歩5分、田町駅(三田口)徒歩10分で利用も可能です。

